電站止回閥產品概述
電站止回閥是一種適用于工作壓力小于等于45.0MPa,工作溫度不大于630℃的火力發電廠汽、水系統用法蘭、焊接連接的止回閥,其安裝在水平管道中,依靠介質流動的壓力推動閥瓣沿垂直于水平面的方向上下運動來自動啟閉閥門,介質回流時受到了閥瓣的阻擋而起到防倒流作用。該閥在設計時,可根據用戶要求在閥瓣上端安裝一個彈簧,從而保證在閥門關閉時的密封性,工作時,當管道流體按照指定方向流入,閥瓣在介質力的作用下,克服自身重力以及彈簧力作用,沿導向座向上運動,閥門自動開啟;若流體作用力減小或反向流動,使閥瓣上方壓力大于其下方壓力,閥瓣則落下,在自身重力以及彈簧力作用下與閥座緊密貼合,從而使介質不能通過,即流體無法逆流。本產品可根據不同的公稱壓力,將閥體中法蘭與閥蓋設計成法蘭螺栓連接或內壓自密封式結構。
電站止回閥部件材料
| 序號 | 部件名稱 | 材料名稱 | |||||
| 1 | 閥 體 | A216 WCB | A217 WC6 | A217 WC9 | A217 C12A | ZG20CrMoV | ZG15Cr1Mo1V |
| 2 | 閥 座 | A105 | A182 F11 | A182 F22 | A182 F91 | 12Cr1MoV | 15Cr1Mo1V |
| 3 | 閥 瓣 | A105 | A182 F11 | A182 F22 | A182 F91 | 12Cr1MoV | 15Cr1Mo1V |
| 4 | 閥 蓋 | A105 | A182 F11 | A182 F22 | A182 F91 | 12Cr1MoV | 15Cr1Mo1V |
| 5 | 壓 蓋 | A182 F6a CL.2 | A182 F11 | A182 F22 | A182 F91 | 12Cr1MoV | 15Cr1Mo1V |
| 6 | 四 開 環 | A182 F6a CL.2 | A182 F11 | A182 F22 | A182 F91 | 12Cr1MoV | 15Cr1Mo1V |
| 7 | 密 封 環 | A182 F304 | A182 F304 | A182 F304 | A182 F316 | A182 F316 | A182 F316 |
| 8 | 螺 栓 | A193 B7 | A193 B16 | A193 B16 | A193 B16 | 25Cr2Mo1VA | 25Cr2Mo1VA |
| 9 | 螺 母 | A194 2H | A194 16 | A194 16 | A194 16 | 25Cr2Mo1VA | 25Cr2Mo1VA |
電站止回閥性能規范
| 公稱壓力PN(MPa) | 10.0 | 16.0 | 20.0 | 25.0 | 32.0 | 42.0 |
| 殼體強度試驗壓力(MPa) | 15.0 | 24.0 | 30.0 | 37.5 | 48.0 | 63.0 |
| 水壓密封試驗壓力(MPa) | 11.0 | 17.6 | 22.0 | 27.5 | 35.2 | 46.2 |
| 氣密封試驗壓力(MPa) | 0.5~0.7 | 0.5~0.7 | 0.5~0.7 | 0.5~0.7 | 0.5~0.7 | 0.5~0.7 |
| 設計制造 | NB/T 47044、ASME B16.34、JIS E-101 | |||||
| 結構長度 | GB/T 12221、ASME B16.10、JIS E-101 | |||||
| 法蘭尺寸 | JB/T 79、GB/T 9124.1、HG/T 20592、SH/T 3406、ASME B16.5等 | |||||
| 檢驗試驗 | NB/T 47044、API 598、JIS E-101 | |||||
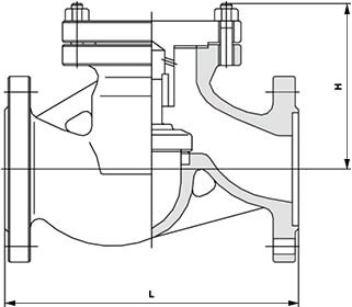
電站止回閥主要尺寸
| 公稱壓力 PN | 公稱尺寸 DN | 外形尺寸/mm | 公稱壓力 PN | 公稱尺寸 DN | 外形尺寸/mm | ||
| L | H | L | H | ||||
| 100 | 50 | 300 | 175 | 160 | 50 | 300 | 175 |
| 65 | 340 | 193 | 65 | 340 | 193 | ||
| 80 | 380 | 238 | 80 | 380 | 238 | ||
| 100 | 430 | 269 | 100 | 430 | 269 | ||
| 125 | 500 | 313 | 125 | 500 | 313 | ||
| 150 | 550 | 355 | 150 | 550 | 355 | ||
| 200 | 650 | 403 | 200 | 650 | 403 | ||
| 表中未列出的其他規格參數,請咨詢汗越閥門技術部! | |||||||
電站止回閥結構圖


