氣動三通球閥產品概述
氣動三通球閥是一種由相應行程的氣動執行機構與三通球閥閥桿的伸出端傳動連接帶動球體經90°、120°、135°或180°旋轉來達到換向與分流、合流控制的三通氣動球閥,其按閥門結構形式分為L型、T型和Y型三種,可以滿足不同的生產工藝要求,L型和Y型適用于介質流向的切換,能使相互垂直或呈120°、135°的兩個流道流通,T型則適合介質的分流、合流或流向切換,T型通孔可以使三個通道互相連通或使其中兩個通道連通。該閥與電氣閥門定位器配套,輸入DC4~20mA信號及0.4~0.7MPa氣源即可控制運轉,實現對壓力、流量、溫度和液位等參數的調節,亦配行程限位開關、過濾器、電磁閥,可實現開關操作,并送出兩對無源觸點信號指示閥門的開關。本產品具有操作省力,易于實現遠程自動化控制的優點,因此被廣泛應用于石油、石化、化工、輕紡、食品、制藥、造紙等工業領域。
氣動三通球閥部件材料
| 序號 | 部件名稱 | 材料名稱 | ||||
| 1 | 閥 體 | ASTM A216 WCB | ASTM A351 CF8 | ASTM A351 CF3 | ASTM A351 CF8M | ASTM A351 CF3M |
| 2 | 閥 蓋 | ASTM A216 WCB | ASTM A351 CF8 | ASTM A351 CF3 | ASTM A351 CF8M | ASTM A351 CF3M |
| 3 | 閥 座 | R-PTFE、PTFE、TEFLON、NYLON、PPL、PEEK、DEVLON、SST+HF | ||||
| 4 | 球 體 | ASTM A182 F304 | ASTM A182 F304 | ASTM A182 F304L | ASTM A182 F316 | ASTM A182 F316L |
| 5 | 閥 桿 | ASTM A182 F6a | ASTM A182 F304 | ASTM A182 F304L | ASTM A182 F316 | ASTM A182 F316L |
| 6 | 填 料 | GRAPHITE、R-PTFE、PTFE、TEFLON、PCTFE | ||||
| 7 | 填料壓蓋 | ASTM A216 WCB | ASTM A351 CF8 | ASTM A351 CF3 | ASTM A351 CF8M | ASTM A351 CF3M |
| 8 | 蝶形彈簧 | 17-7PH | 17-7PH | 17-7PH | 17-7PH | 17-7PH |
氣動三通球閥性能規范
| 公稱壓力Class | 150 | 300 | 600 | 900 | 1500 |
| 殼體試驗壓力(MPa) | 3.0 | 7.5 | 16.5 | 22.5 | 39.2 |
| 高壓液體密封試驗壓力(MPa) | 2.2 | 5.5 | 12.1 | 16.5 | 28.6 |
| 低壓氣體密封試驗壓力(MPa) | 0.4~0.7 | 0.4~0.7 | 0.4~0.7 | 0.4~0.7 | 0.4~0.7 |
| 設計制造 | GB/T 12237、GB/T 21385、API 608、ASME B16.34 | ||||
| 結構長度 | 按本廠標準Q/CB的規定或按訂貨合同要求 | ||||
| 法蘭標準 | JB/T 79、GB/T 9113、HG/T 20592、HG/T 20615、SH/T 3406、ASME B16.5等 | ||||
| 檢驗試驗 | GB/T 26480、JB/T 9092、API 598 | ||||
| 氣源壓力 | 0.4MPa ~ 0.7MPa | ||||
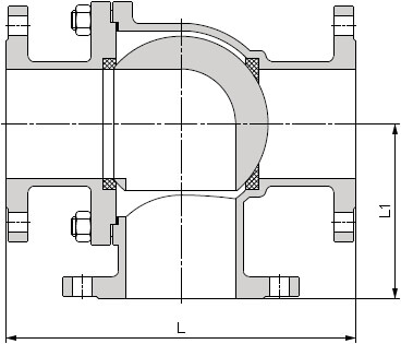
氣動三通球閥主要尺寸
| 公稱壓力 Class | 公稱尺寸 NPS | 結構尺寸/mm | 公稱壓力 Class | 公稱尺寸 NPS | 結構尺寸/mm | ||
| L | L1 | L | L1 | ||||
| 150 | 1 | 180 | 90 | 150 | 4 | 320 | 160 |
| 1 ? | 200 | 100 | 5 | 380 | 190 | ||
| 1 ? | 220 | 110 | 6 | 440 | 220 | ||
| 2 | 240 | 120 | 8 | 550 | 275 | ||
| 2 ? | 260 | 130 | 10 | 670 | 335 | ||
| 3 | 280 | 140 | 12 | 720 | 425 | ||
| 表中未列出的其他規格尺寸,請咨詢汗越閥門技術部! | |||||||
氣動三通球閥結構圖

本產品按結構型式分為L型、T型和Y型三種,常用型號有Q644F、Q644H、Q644Y、Q645F、Q645H、Q645Y、Q642F、Q642H、Q642Y等,其氣動執行器可選用AT、GT、AW等類型。

